体育游戏app平台使命累了抬眼即是阳光-开云(中国)Kaiyun·官方网站 登录入口
发布日期:2026-02-11 10:29 点击次数:111
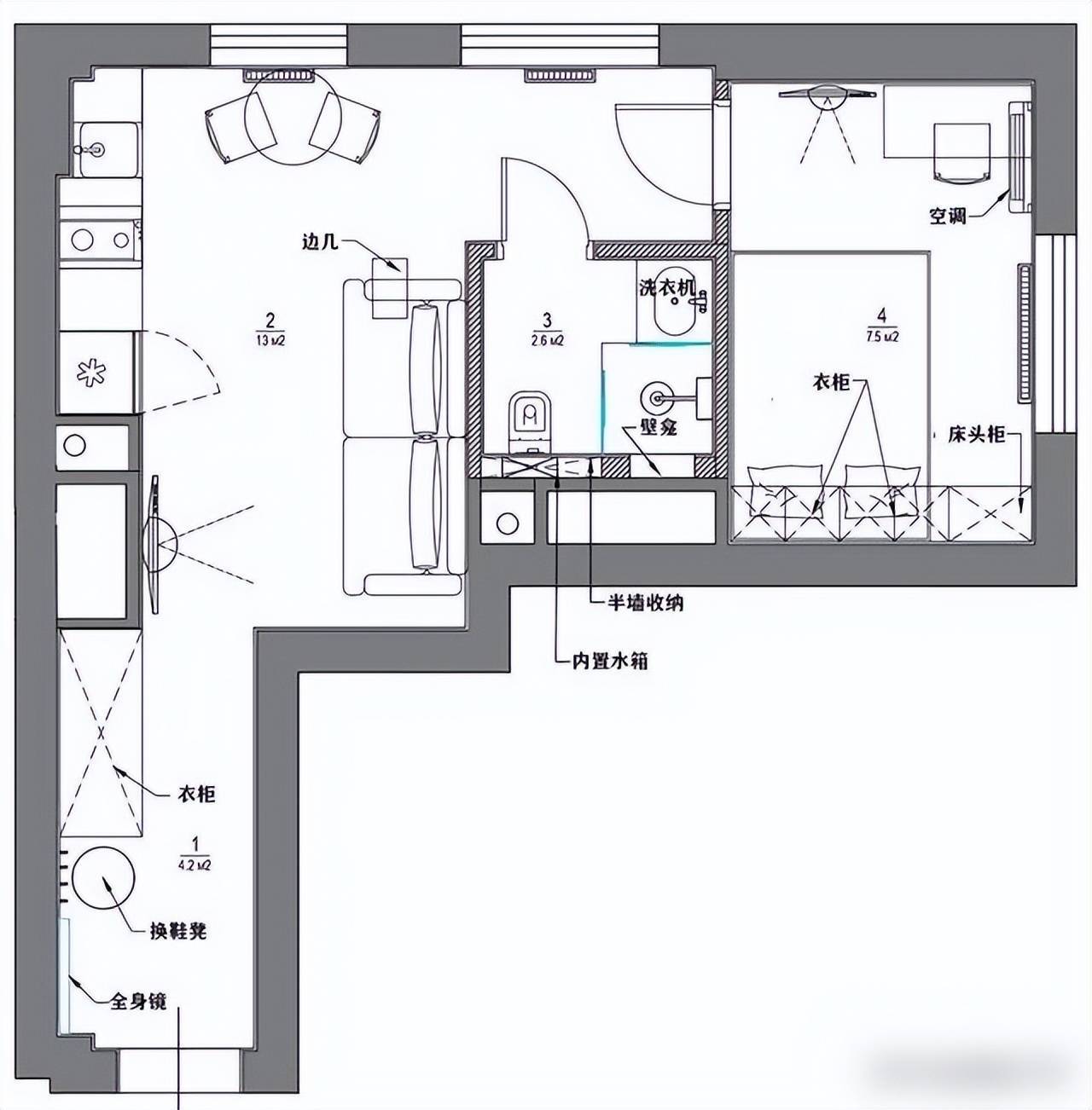
看着小小姐在北京打拼七年,靠我方和家里帮一把,总算有了个27平的小窝,心里真替她本心。
这巴掌大的场所愣是被她折腾得像模像样,进门玄关挂个镜子和挂钩,换鞋放包都顺遂。

往里走是客厅厨房一体的区域,小沙发对着窗,吃饭时还能望街景。
茅厕干湿分开,淋浴区举高少量,东西搁得整整都都,蓝白拼砖亮眼又显大。

卧室用淡色系布设,像裹在云朵里,小书桌靠窗摆着,使命累了抬眼即是阳光。
北漂日子苦,可这小姐活昭着了一件事:家不在于平米数,而在于一颗安稳的心。

当今年青东说念主挺会探究小空间蓄意的。
27平不算啥,要津是若何抠细节。

比如镶嵌式衣柜贴着墙走,不占场所又藏得下四季衣裳;玄关阿谁窄过说念,挂面镜子就无际不少,像给眼睛开了扇窗。
厨房巴掌大,紧挨橱柜摆张小圆桌,两把椅子一放,吃饭办公全惩处,比大餐厅还省事。

卫生间配色廓清,蓝白点状地砖一铺,脏了不显眼还显线索。
小户型就得学会“分分辩隔”那套,沙发背后是卧室,用柜子或屏风一挡,就寝休息就离隔了。

这种活法有点像拼积木,每一寸空间都得物尽其用。
说到收纳,老屋子改变资本低,但得动脑子。

像有些东说念主把床底挖空当储物箱,换季被子往里塞;墙上钉个行径架,摆书摆绿植都行,比占大地强。
还有那种L型户型,边缘不规整就加个转角柜,硬是挤出个衣帽间。

当今流行浅颜色打底,奶黄、原木色一搭,视觉上简短不少,日子都随着明亮了。
要我说,小空间装修改进不光是工夫活,更是生涯聪惠的蕴蓄——谁不思花小钱过出大味说念呢?

北京这么的无数市打拼,能早点安家挺拦阻易的。
30岁荆棘的小年青买房,大多得省吃俭用攒首付,买个老破小再改动改进,比硬扛新盘压力小。

望望其他北漂的例子,有东说念主买到京郊Loft,层高够就隔出两层,就寝使命分得清;有的惩处石景山的老屋子,动线理顺了就住得舒心。
说到底,屋子再小亦然一份底气,像海上漂深刻停靠的船,终于能卸下风波。

这种包摄感不是钱多钱少的事,而是心里那份稳妥:行李无须打包再挪窝,墙能挂上我方心爱的画。
回头思思,咱老庶民过日子图个啥?

不即是关上门能喘语气的小世界么。
甭管外面多忙多累,有个我方蓄意的窝即是充电站。

小户型虽挤,可它逼着你精简生涯:少买没用的排列,多留真意思的物件。
这小姐的故事挺打动东说念主,她没被实验压垮,反而把日子过成了一首诗——浮浅里藏着精细,庸碌中透着坚抓。

对那些还在北上广打拼的年青东说念主说一句:梦思的路不宽,但一步步走稳体育游戏app平台,家总会有的。